Qui peut faire appel à STUDIO-OUEST ?
Bienvenue chez STUDIO OUEST - DESSINATEUR EN BÂTIMENT
- Que vous soyez un Particulier, un Artisan de tout secteur, Architecte ou Maître d'oeuvre, vous pouvez tout à fait faire appel aux services d’un dessinateur et bénéficier de son expertise. Celui-ci s’adapte à tout type de projet et peut répondre à toute demande et dans les meilleurs délais.
- Le dessinateur peut concevoir des projets de toute envergure (+ de 150m²) mais ne peut déposer des autorisations d’urbanisme uniquement pour des projets de moindres ampleur (-de 150m²). Dans le cas d’un projet de taille (+ de 150m²), STUDIO-OUEST peut vous faire bénéficier de son réseau et vous orienter vers le professionnel adapté à votre projet.
Pourquoi choisir studio ouest ?
- Il conçoit votre projet idéal.
En prenant en compte vos besoins, envies, remarques et exigences, le dessinateur indépendant a à cœur de faire de votre rêve, une réalité. Le tout dans les meilleures conditions possibles. - C’est un expert en urbanisme.
Les réglementations en vigueurs et les plans locaux d’urbanisme n’ont aucun secret pour lui. C’est un avantage considérable, puisque grâce à sa connaissance pointue des règles d’urbanisme, vous n’aurez jamais de mauvaises surprises avec vos autorisations d’urbanisme. - Un interlocuteur unique pour tout le projet.
L’avantage ? Vous faciliter davantage vos démarches, le suivi de votre projet et faciliter les échanges entre lui et vous. En tant que seul interlocuteur, cela accélèrera la réalisation de votre projet et évitera les erreurs et les doublons. - C’est n’est pas un professionnel hors de prix
Le fait que le dessinateur soit un professionnel indépendant impact énormément sa grille tarifaire. Pour des projets de petite et moyenne envergure et vos autorisations d’urbanismes, le dessinateur indépendant pratique des prix très abordables
Nos services
Nous proposons une gamme complète de services de dessin en bâtiment, adaptés à vos besoins spécifiques. De la conception initiale à la réalisation des plans, notre approche est axée sur la compréhension et la réponse à vos besoins, en fournissant des solutions efficaces et pratiques.
Conception
Élaboration de plans initiaux et de concepts architecturaux.
Plans d'exécution
Réalisation de documents précis et renseignés. Préparation pour quantitaifs et estimatifs
Permis de construire
Préparation des documents nécessaires pour les demandes de permis.
Modifications de plans
Adaptation et mise à jour des plans existants.

À propos de studio ouest
STUDIO OUEST - DESSINATEUR EN BÂTIMENT est né d'une passion pour le dessin et l'architecture. Situé entre Aquitaine et Occitanie, nous offrons des services de dessin en bâtiment flexibles et adaptés à vos besoins. Notre engagement envers la qualité et nos délais garantit que chaque projet reflète notre quête de satisfaction.
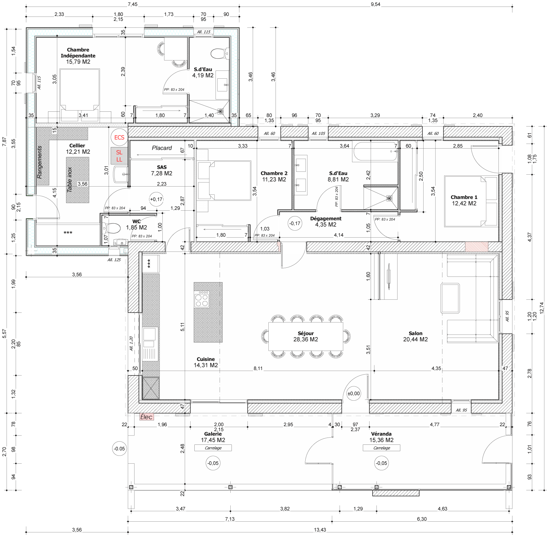
Ci-Contre : Permis d'aménager - Construction de 5 Logements Individuels
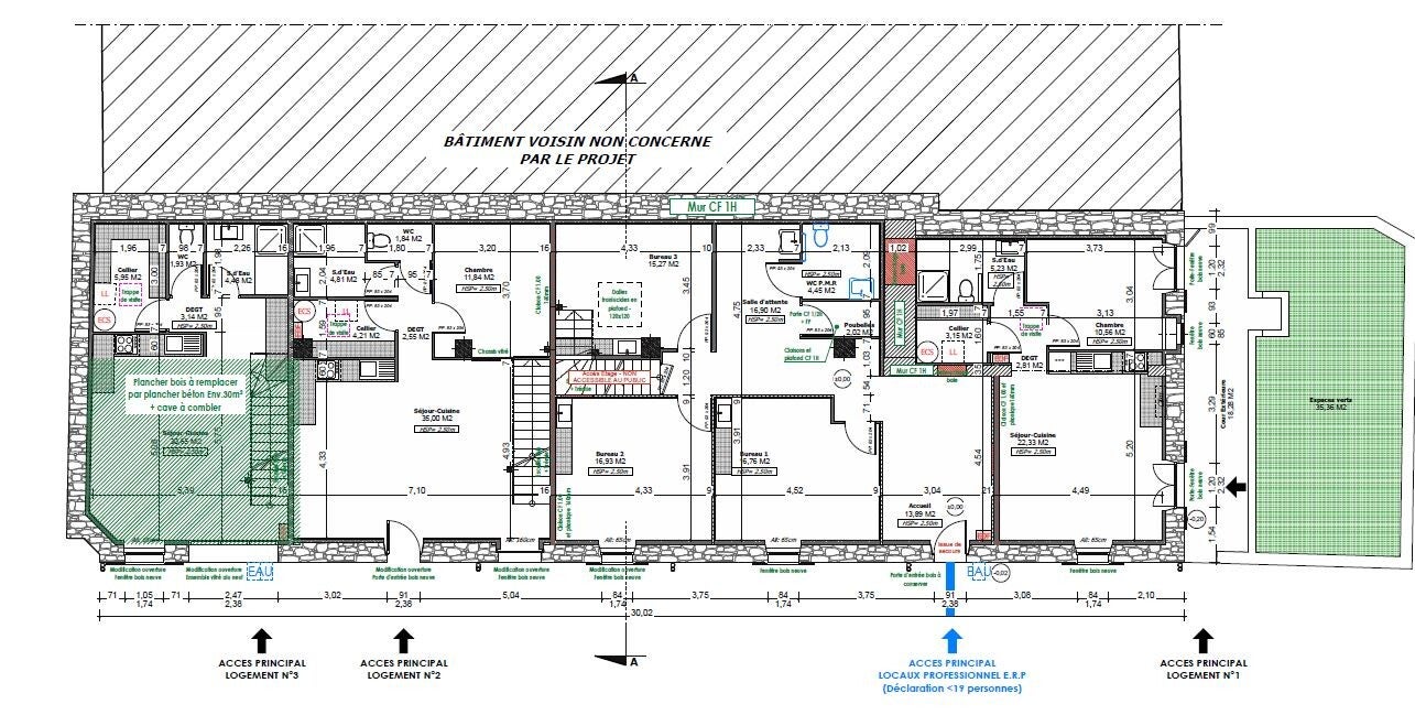
Ci-Dessus : Restructuration et aménagement de Locaux commerciaux
Créez votre propre site internet avec Webador